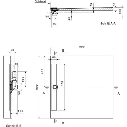
Das befliesbare Duschelement Indigno R macht den Einbau eines modernen, bodengleichen Duschplatzes ganz einfach. Das Duschelement ist aus Hartschaum gefertigt und extrem druckstabil.
Individuelle Gestaltung Ihres Duschplatzes
Das Duschelement ist gemäß der Montageanleitung individuell zuschneidbar und lässt sich somit perfekt anpassen. Der Duschplatz kann nach dem Einbau und dessen Abdichtung ganz nach eigenen Wünschen befliest werden und ist bei einer Fliesengröße von mindestens 100 x 100 mm sogar rollstuhlbefahrbar.
Inklusive waagerechtem Ablauf und Duschrinne aus Edelstahl
Indigno R verfügt über eine formschöne Duschrinne aus Edelstahl, die den Duschplatz zu einem Glanzpunkt im eigenen Bad werden lässt. Ebenfalls im Lieferumfang enthalten ist ein waagerechter Ablauf mit normgerechtem Ablaufstutzen DN 50.
















Rezensionen
Es gibt noch keine Rezensionen.